變頻器PLC控制柜在無負壓供水設備中的應用實例
變頻器PLC控制柜在無負壓供水設備中的應用實例
變頻器PLC控制柜的誕生
變頻器PLC控制柜在系統可靠性方面有良好的效果,提高生產效率,并且節能效益明顯。變頻器PLC控制柜由于采用了可編程控制器,因而實現了供水系統在多種工況下的全程控制。系統配置合理,性能可靠,操作方便,人機界面友好,顯示、制表和繪圖功能齊全,實用性強。該系統的投入使用,對提高企業、單位的產品質量和管理水平起到了推動作用。
在貫徹可持續發展戰略的現在,變頻器PLC控制柜中的應用具有特殊的意義。隨著計算機控制技術的發展,傳統繼電器控制技術必然被基于計算機技術而產生的PLC控制技術所取代。而PLC本身優異的性能使基于PLC控制的系統變的經濟穩定且維護方便。
通過PLC實現了無負壓供水設備的各種控制調節功能是供水行業發展的大勢所趨。
變頻器PLC控制柜主要裝置包括:可編程控制器(PLC)、ABB變頻器、壓力傳感器、PID控制器、動力控制線路以及相關軟件控制單元。用戶通過控制柜面板上的只是燈和按鈕、轉換開關來了解和控制系統的運行。通過安裝在出水管網上的壓力傳感器,把出口壓力信號變成4-20mA的標準信號送入PID調節器,經運算與給定壓力參數進行比較,得出一調節參數,送給變頻器,由變頻器控制水泵的轉速,調節系統供水量,使供水系統管網中的壓力保持在給定壓力上;當用水量超過一臺泵的供水量時,通過PLC控制器加泵。根據用水量的大小由PLC控制工作泵數量的增減及變頻器對水泵的調速,實現恒壓供水。當供水負載變化時,輸入電機的電壓和頻率也隨之變化,這樣就構成了以設定壓力為基準的閉環控制系統。
同時系統配備的時間控制器和PID控制器,使其具有定時換泵運行功能(即鐘控功能,由時間控制器實現)和雙工作壓力設定功能(PID控制器和時間控制器實現)。此外,系統還設有多種保護功能,尤其是硬件/軟件備用水泵功能,充分保證了水泵的及時維修和系統的正常供水。

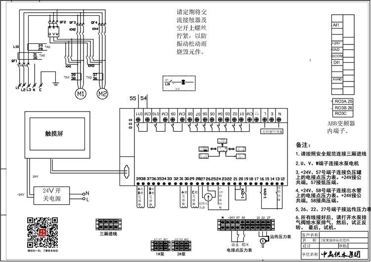
變頻器PLC控制柜接線圖
無負壓供水設備變頻器PLC控制柜調試參數圖
變頻器PLC控制柜特點分析
1、節約能源
變頻器PLC控制電機與傳統控制的電機比較,能源節約是有實際意義的,根據注水量、輸油量需求來供給的電機工況是經濟的運行狀,即可節電60%
2、運行成本降低
傳統電機的運行成本由三項組成:初始采購成本、維護成本和能源成本。其中能源成本大約占電機運行成本的77%。通過能源成本降低44.3%,再加上變頻起動后對設備的沖擊減少,維護和維修量也跟隨降低,所以運行成本將大大降低。
3、提高壓力控制精度
變頻器PLC控制柜具有準確的壓力控制能力。使電機的壓力輸出與系統所需的注水量相匹配。變頻控制電機的輸出量隨著電機轉速的改變而改變。由于變頻控制電機速度的精度提高,所以它可以使管網的系統壓力變化保持在3pisg變化范圍,也就是0.2bar范圍內,有效地提高了工況的質量。
4、延長電機的使用壽命
變頻器從0HZ起動電機,它的起動加速時間可以調整,從而減少起動時對電機的電器部件和機械部件所造成的沖擊,增強系統的可靠性,使電機的使用壽命延長。此外,變頻控制能夠減少機組起動時電流波動,這一波動電流會影響電網和其它設備的用電,變頻器能夠有效的將起動電流的峰值減少到醉低程度。
5、低了電機的噪音
根據電機的工況要求,安裝變頻調速后,電機運轉速度明顯減慢,因此有效地降了電機運行時的噪音。
變頻器PLC控制柜功能介紹
1、電源切換與保護功能
變頻器PLC控制柜通常設計有斷路器元件,它連接著進線電源,可以幫助變頻控制柜完成電路的通斷操作,并能夠在電路和變頻器出現短路或過載時提供保護。此外變頻柜還可以在電機維護時切斷電源保證操作人員。
2、變頻調速功能
變頻器PLC控制柜的控制面板上設置有變頻調速用的電位器,可以根據操作人員的輸出頻率,向電機輸送指令信號,控制電機的轉速。變頻控制柜中的部分產品設置有工頻切換功能,以保證在變頻器出現故障時,通過自動控制回路將電動機切換回工頻電源。
3、直觀控制功能
變頻器PLC控制柜的柜體上設計有顯示設備與操作面板,它與變頻控制柜內部的電器元件相連,可以直觀顯示變頻控制柜的運行狀態,同時方便操作人員控制變頻裝置的運行,及對電機等被控制設備進行現場操作。
變頻器PLC控制柜的柜體上,還安裝有各種儀器儀表及指示燈,例如電壓表、電流表、頻率表,及電源指示燈、報警指示燈、運行指示燈、工頻指示燈等。變頻控制柜的運行及操作狀態,可以直接反應在各項儀表及指示燈上,實現對變頻器工作狀態的時時監測。
4、防護功能
變頻器PLC控制柜將各種包括變頻器在內的各種電氣元件都集中在柜體內,這樣可以減少外部環境對電氣元件的影響程度,降低電氣元件受環境污染的程度,也降低變頻控制柜操作人員的觸電危險,因此具有較好的防護效果。
- 上一篇:上善若水是什么意思?厚德載物為哪般? 2017/9/1
- 下一篇:桶裝礦泉水設備組成部分及在辦公室生活用水中的占比 2017/8/31


